Dřevostavba Easy 48
Parametry domu
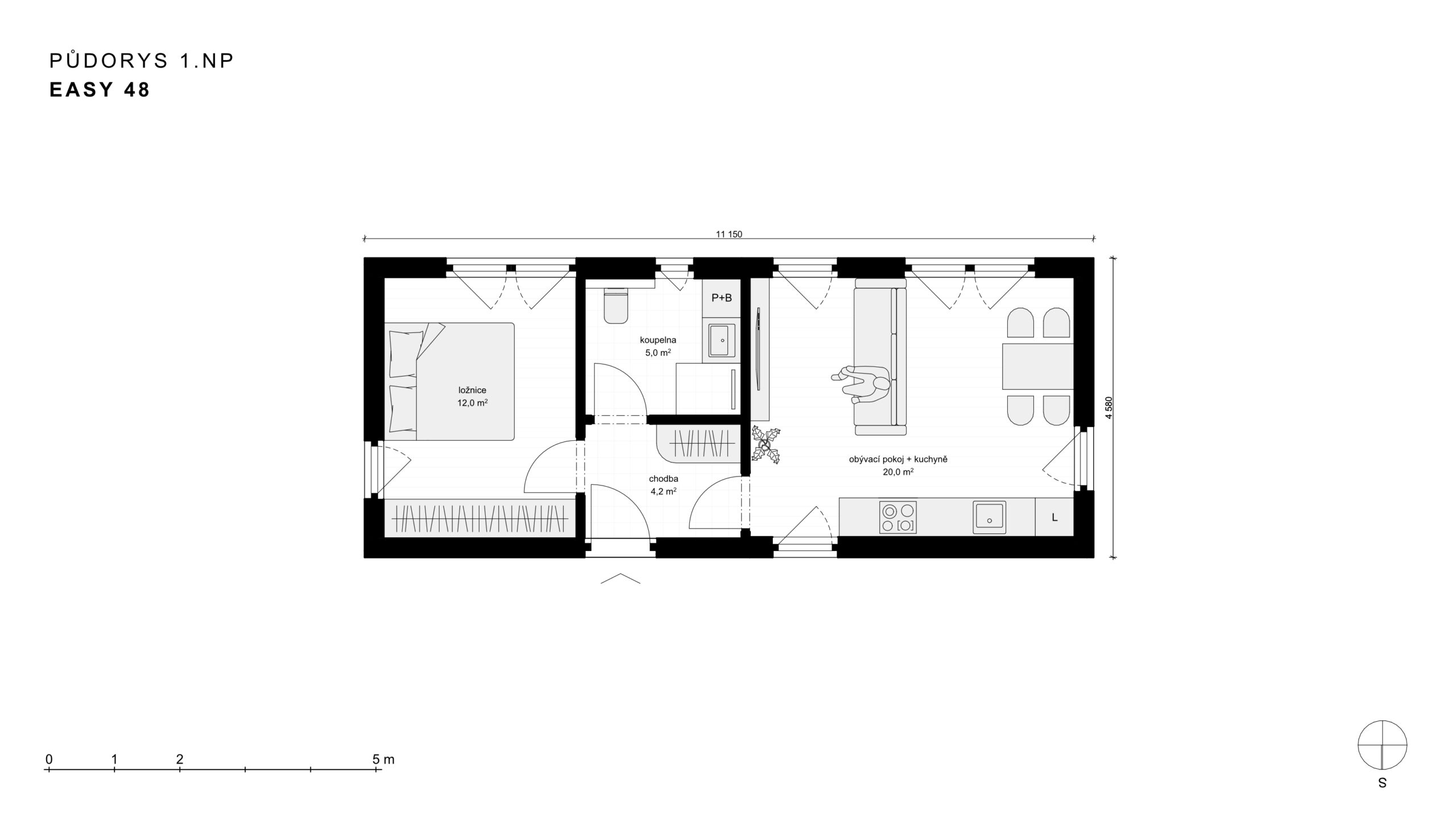
Počet místností 3+kk
Zastavěná plocha [m2] 53.22
Užitná plocha [m2] 39.85
Typ střechy sedlová (lze i pultová)
Sklon střechy [°] 26
Cena domu Kč včetně 12% DPH
Základní cena1 590 000
Bez čeho se váš dům neobejde
Projekt 88 000
Stavební povolení 27 200
Zemní vruty + příprava 101 000
Tepelné čerpadlo - vzduch/vzduch217 500
Režie od 10 % 190 850
Cena domu na klíč
Cena na klíč obsahuje: cenu domu, cenu základů, projekt, režii a vyřízení stavebního povolení.
2 214 550
Dřevostavba Easy 48
Dřevostavba o rozměrech 12x4m – vhodná pro náročnější zákazníky, kteří chtějí více prostoru za nízkou cenu. Levné, přesto kvalitní bydlení. A je často využíván pro trvalé bydlení 2-4 lidí.
Výroba probíhá v hale a dřevostavba je transportována na pozemek jako hotový dům. V případě, kdy není možné hotový dům přivést na pozemek, je možná i stavba na místě.
Dispozice: Objekt má jedno nadzemní podlaží s jednou jednotkou 3+kk – vstup, obývací pokoj s kuchyňským koutem, koupelna, ložnice a pokoj
Standardní vybavení
- Obklady a dlažby
- Záchod
- Umyvadlo
- Sprchový kout či vana
- Sprchová baterie
- Umyvadlová baterie
- Sprchová hlavice
- El. bojler Ariston Evo 80
- Topný žebřík
- Vinylová podlaha
- Střešní krytina
- Okna
- Parapety
- Vnitřní dveře + obložky
- Vypínače a zásuvky
- Fasáda
- Výdřevy pro zpevnění stěn
- Přípojky
- Osvětlení
- Hromosvod
- Elektrický větrák – koupelna či WC
- Trojskla
Nadstandard a příplatková výbava
Krbová kamna (dle výběru)
35000 Kč
Nerezový komínový systém
70000 Kč
Připojení kamen / krbu
11500 Kč
Elektrické podlahové vytápění
52000 Kč
Teplovodní podlahové vytápění
od 68000 Kč
Tepelné čerpadlo vzduch – voda
od 250000 Kč
Sprchový kout + vyspádovaná dlažba + odtokový žlab
14000 Kč
Monitoring vlhkosti
30000 Kč
Modul pro závěsné WC/bidet
10000 Kč
Bidet
5000 Kč
Bidetová sprška
3500 Kč
Trojskla
14000 Kč
Polodekor oken
10000 Kč
Celodekor oken
18000 Kč
Posuvný balkonový portál
20000 Kč
Pouzdro pro posuvné interiérové dveře
od 12000 Kč
Předokenní žaluzie elektrické
120000 Kč
Předokenní rolety elektrické
100000 Kč
Interiérové žaluzie
15000 Kč
Sítě do oken
15000 Kč
Fasádní polystyren 160 mm
v ceně
Fasádní polystyren 180 mm
10000 Kč
Fasádní polystyren 200 mm
12500 Kč
Obložení fasády palubkami
za m² 2800 Kč
Příprava na digestoř
od 2000 Kč
Klimatizační jednotka
od 53003 Kč
Rekuperace decentrální
od 50000 Kč
Střecha taška betonová
24000 Kč
Přesahy střechy podélné strany 50 cm
od 34000 Kč
Terasa nezastřešená
za m² 6500 Kč
Terasa zastřešená
za m² 10500 Kč
Fasádní sokl
za m² 1400 Kč
Venkovní kohout nezámrzný
7000 Kč
Přípojky
za bm přípojky od 1700 Kč
Měření radonu (pouze u základové desky)
5500 Kč
Fotovoltaická elektrárna
od 280000 Kč
Kontaktujte nás
Zaujal vás konkrétní dům? Neváhejte nás kontaktovat, naši specialisté vám rádi vše vysvětlí.





