Free cookie consent management tool by TermsFeed

Patrová dřevostavba Easy 77

Parametry domu

Počet místností 5+kk Zastavěná plocha [m2] 82.68 Užitná plocha [m2] 131.4 Typ střechy sedlová Sklon střechy [°] 40

Cena domu Kč včetně 12% DPH

Základní cena3 738 000 Bez čeho se váš dům neobejde Projekt 109 500 Stavební povolení 27 200 Základy + příprava462 000 Režie od 10 % 420 000 Cena domu na klíč Cena na klíč obsahuje: cenu domu, cenu základů, projekt, režii a vyřízení stavebního povolení. 4 756 700
Patrová dřevostavba Easy 77

Plnohodnotné rodinné bydlení s promyšleným patrovým uspořádáním

Easy 77 představuje chytré řešení pro všechny, kteří hledají plnohodnotné rodinné bydlení v patrovém domě s rozumnými náklady.

Tento dům vychází ze základní stavební konstrukce EasyHomes, která zaručuje pevnost, odolnost a skvělé tepelně-izolační vlastnosti, přičemž zachovává cenovou dostupnost a krátkou dobu výstavby.

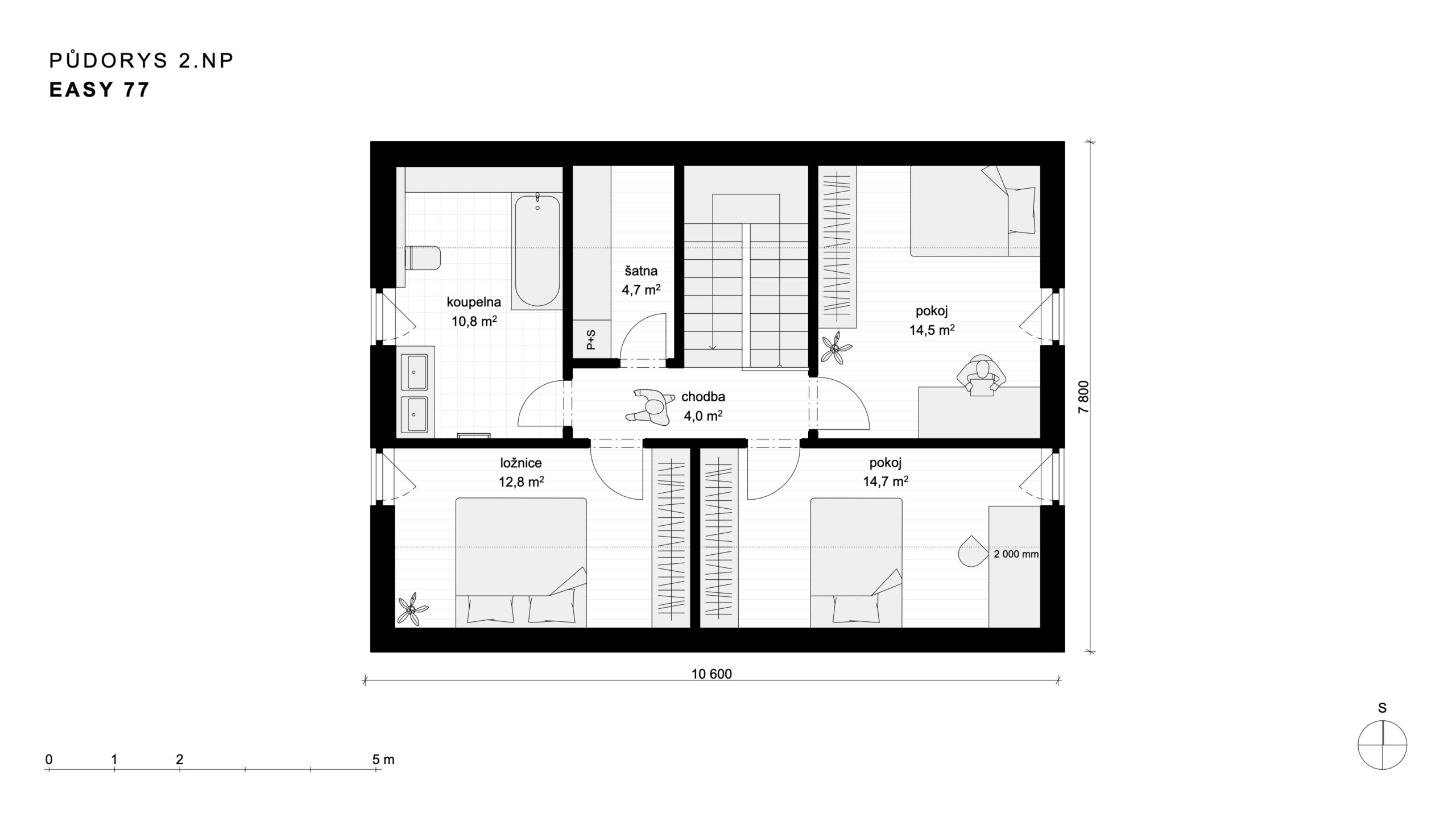
Dispozice domu nabízí praktické a funkční rozložení místností – v přízemí se nachází prostorný obývací pokoj s kuchyní, samostatný pokoj vhodný jako pracovna nebo pokoj pro hosty, koupelna a technické zázemí. V patře je klidová zóna se třemi pokoji a hlavní koupelnou, která zajišťuje dostatek prostoru i pro větší rodinu.

Díky kompaktní zastavěné ploše a chytrému dispozičnímu řešení je Easy 77 ideální volbou pro čtyř- až pětičlennou rodinu, která chce pohodlně bydlet bez kompromisů.

Stejně jako ostatní domy EasyHomes lze i tento model individuálně upravit podle přání klienta – od dispozic až po výběr fasády, střechy či oken.

Standardní vybavení
  • Obklady a dlažby
  • Záchod
  • Umyvadlo
  • Sprchový kout či vana
  • Sprchová baterie
  • Umyvadlová baterie
  • Sprchová hlavice
  • El. bojler Ariston Evo 80
  • Topný žebřík
  • Vinylová podlaha
  • Střešní krytina
  • Okna
  • Parapety
  • Vnitřní dveře + obložky
  • Vypínače a zásuvky
  • Fasáda
  • Výdřevy pro zpevnění stěn
  • Přípojky
  • Osvětlení
  • Hromosvod
  • Trojskla
Nadstandard a příplatková výbava
Krbová kamna (dle výběru) od 35000 Kč
Nerezový komínový systém 90000 Kč
Připojení kamen / krbu 11500 Kč
Elektrické podlahové vytápění 176850 Kč
Teplovodní podlahové vytápění od 262000 Kč
Tepelné čerpadlo vzduch – voda od 300000 Kč
Sprchový kout + vyspádovaná dlažba + odtokový žlab 14000 Kč
Modul pro závěsné WC/bidet 10000 Kč
Bidet 5000 Kč
Bidetová sprška + připojení 6000 Kč
Monitoring vlhkosti
Polodekor oken 22000 Kč
Celodekor oken 38000 Kč
Posuvný balkonový portál 20000 Kč
Pouzdro pro posuvné interiérové dveře 12000 Kč
Předokenní žaluzie elektrické 305000 Kč
Předokenní rolety elektrické 270002 Kč
Interiérové žaluzie 23000 Kč
Sítě do oken 23000 Kč
Fasádní polystyren 100 mm v ceně
Fasádní polystyren 180 mm 48000 Kč
Fasádní polystyren 200mm 58000 Kč
Obložení fasády palubkami za m² 2800 Kč
Příprava na digestoř od 2000 Kč
Klimatizační jednotka od 65000 Kč
Rekuperace decentrální od 100000 Kč
Střecha taška betonová 49000 Kč
Elektrický větrák – koupelna či WC
Fasádní sokl za m² 1400 Kč
Venkovní kohout nezámrzný 7000 Kč
Přípojky za bm přípojky od
Měření radonu (pouze u základové desky) 5500 Kč
Fotovoltaická elektrárna od 300000 Kč
Přesahy střechy podélné strany 50cm od 61800 Kč
Terasa nezastřešená Kč/m2 6500 Kč
Terasa zastřešená Kč/m2š 10500 Kč
Ceny jsou orientační a budou upřesněny po vyhotovení konkrétní projektové dokumentace.

Kontaktujte nás

Zaujal vás konkrétní dům? Neváhejte nás kontaktovat, naši specialisté vám rádi vše vysvětlí.